Prodej 4+kk 181 m² + terasa 15 m² + parkování
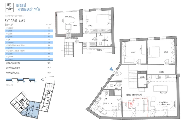
V exkluzivní lokalitě ulice Kocínova, v samotném centru města Písek, vzniká jedinečný developerský projekt Hejtmanský dvůr, který spojuje noblesu historické architektury s nejmodernějšími technologiemi současného bydlení. Dům prochází důkladnou a citlivou rekonstrukcí, při níž architekt kladl důraz na zachování původních historických prvků – včetně působivých kleneb ve vybraných bytech – a jejich propojení s nadčasovým designem. Projekt nabízí komorní rezidenční bydlení s výtahem, promyšlenými a vzdušnými dispozicemi (2+kk – 4+kk) a dostatkem úložných prostor. Každý byt je navržen v luxusním standardu, s důrazem na kvalitu materiálů, funkčnost i estetiku. Samozřejmostí jsou velkorysé sklepy, praktické úložné prostory přímo v bytě a společná kolárna. Byt číslo G 301, o dispozici 4+kk je mezonetový byt na 3. a 4. nadzemním podlaží. Tento byt je zcela výjimečný, v přízemí bytu je obývací pokoj s kuchyní, dvě samostatné ložnice, , koupelna s toaletou, samostatná toaleta a komora. V mezonetu je pak další ložnice s vlastní koupelnou a velkorysá terasa. Plochy bytu: Podlahová plocha bytu (plocha bytu včetně vnitřních příček, dle vyhlášky č. 366/2013, §2 a §3) je 186 m². Vnitřní plocha bytu (bez příček, bez balkonu a sklepu) je 181,5 m². Sklep o výměře 7 m². Terasa o výměře 15 m² Koupelna: Kamenické rohy – bez lišt. Velkoformátové dlaždice 60×120 cm. Přesné spáry. Top zařizovací předměty. Promyšlené rozvržení a doplňky. Vybrat si můžete ze dvou nadčasových barevných provedení. Dveře a podlahy: Podlahové vytápění, vinylová krytina. Tři barevná provedení podlah na výběr. Interiérové dveře s výškou 210 cm ve dvou barevných variantách. Chytrá domácnost LOXONE: Ovládání dveří skrze tablet v bytu. Okamžitá kontrola spotřeby energií za byt. Ovládání teploty v každé místnosti. Ovládání předokenních žaluzií. Ovládání – nabíjení elektromobilu na Wallboxu. Součástí projektu jsou zastřešená parkovací stání v uzavřeném dvoře, který bude zabezpečen dálkově ovládanými vraty. Ke každému parkovacímu místu je připravena nabíječka pro elektromobil. O komfort a moderní způsob bydlení se stará inteligentní domácnost Loxone, připravenost na klimatizaci a efektivní technické řešení domu – vytápění plynovým kotlem a fotovoltaická elektrárna na střeše, která zajišťuje elektřinu pro společné prostory. Hejtmanský dvůr představuje harmonii klidu jižních Čech a pohodlí městského života. Elegantní architektura, uzavřený dvůr se zelení a vysoký standard provedení vytvářejí ideální domov pro ty, kteří hledají výjimečné bydlení bez kompromisů – s veškerými službami, kulturou i přírodou na dosah. Developer realizuje projekt výhradně z vlastních finančních prostředků, takže financování z Vaší strany je velmi jednoduché a bezpečné – na počátku hradíte pouze 10 % z kupní ceny, navíc uložených do advokátní úschovy, přičemž zbývající část kupní ceny se doplácí až po kolaudaci a podpisu kupní smlouvy, což Vám poskytuje dostatečný časový prostor k zajištění financování koupě. Energetická náročnost budovy je aktuálně uváděna ve třídě D dle projektové dokumentace. Průkaz energetické náročnosti je v současné době přepracováván, neboť původní výpočet nezohledňuje inteligentní řízení domu a bytů systémem Loxone (samostatná regulace teploty v jednotlivých místnostech, meteostanice) ani fotovoltaickou elektrárnu o výkonu cca 10–17 kWp určenou pro denní dohřev teplé vody pro byty.
- cena
- 18 982 000 Kč
parkovací stání 336 000,-Kč
- adresa
- Kocínova, Budějovické Předměstí, Písek
- ID nabídky
- J12404
- Stav nabídky
- volné
- Budova
- Cihlová
- Stav objektu
- Ve výstavbě
- Plocha užitná
- 181 m²
- Celková plocha
- 186 m²
- Poloha objektu
- Rohový
- Umístění objektu
- Centrum obce
- Vlastnictví
- Osobní
- Ochrana
- Památková zóna
- Typ bytu
- Mezonet
- Sklep
- Ano
- Plocha sklepu
- 7 m²
- Terasa
- Ano
- Plocha terasy
- 15 m²
- Podlaží
- 3
- Počet podlaží budovy
- 4
- Výtah
- Ano
- Datum nastěhování
- 1. 7. 2027
- Topení
- Ústřední plynové
- Topné těleso
- Podlahové
- Zdroj topení
- Plynový kond. kotel
- Zdroj teplé vody
- Plynový kond. kotel
- Možnost parkování
- Ano
- Míst k parkování
- 1
- Třída e. náročnosti
- D
- Vyhláška e. náročnosti
- č. 264/2020 Sb.
- E. náročnost
- 117.3 kWh/m²/rok








































